about
Recent
Architectural Portfolio
contact
Aukett Europe
Lloyds TSB Bank
Fanning Levins
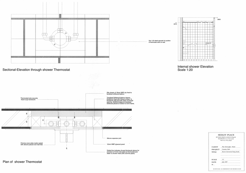
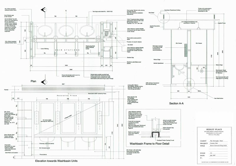
Sedley Place
Appel Behzadi Bohne
British Rail projects
Floyd Slaski
© Copyright 2018