• about
  • REcent Project
  • digital
  • architecture
  • making
  • contact
  • Aukett Europe
  • Lloyds TSB Bank
  • Fanning Levins
  • Sedley Place
  • Appel Behzadi Bohne
  • British Rail projects
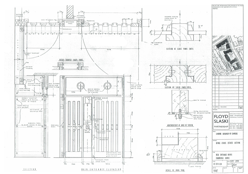
  • Floyd Slaski
© Copyright 2018